контакты
Объекты
Сервис
Как купить
+7(901) 403-18-85
corp@group-sean.ru
Строим и проектируем с 2000г.
SPA комплексы
Бассейны
Аквапарки и SPA-отели
Спорткомплексы
Сауны, бани, хамамы
Реконструкция
каталог товаров
Каталог оборудования
Спорт
Спорт
Кардио тренажёры
Беговые дорожки
Эллиптические тренажёры
Велотренажёры
Силовые тренажёры
Блочные тренажёры
Мультистанции
Свободные веса
Олимпийская подготовка
Стойки
Подставки
Скамейки
Функциональный тренинг
Функциональные станции
Оборудование для станций
Функциональные тренажёры
Подвесные тренажеры
Утяжелители
Единоборства: бокс и боевые искусства
Оборудование и экипировка для бокса
Оборудование для боевых искусств
Фитнес и аэробика
Фитнес и аэробика
Аэробика
Групповое оборудование
Баланс-тренинг
Силовые тренировки
Скайл-аэробика
Степ-аэробика
Резиновые аммортизаторы
Фитнес
Батуты
Виброплатформы
Одежда и аксессуары для фитнеса
Реабилитация
Реабилитация
Оборудование для спортивной диагностики и контроля
Телеметрия и диагностика
Анализаторы и тестирование
Кардиодатчики
Триггеры и массажёры
Массажёры
Триггерная терапия
Для бассейна
Для бассейна
Оборудование для бассейнов
Контроллеры и панели управления
Системы комплексной обработки воды
Системы безопасности
Освещение и LED подсветка
Закладные детали в чашу бассейна
Аксессуары и дополнительное оборудование
Оборудование для спортивных соревнований
Горки для бассейнов
Водопады и пушки
Противотоки
Лестницы и поручни
Аквамузыка в бассейне и подводные динамики
Трамплины
Фонтаны
Системы гидромассажа
Аэромассаж (гейзеры)
Насосы для бассейнов
Циркуляционные насосы
Центробежные насосы
Дозирующие насосы
Перистальтические насосы дозаторы
Дезинфекция воды и химия для бассейна
Дезинфекция воды и химия для бассейна
Оборудование для дезинфекции
Автоматические станции дозирования
Минерализаторы
Ультрафиолетовые установки UV-10-WODA
Хлораторы
Озонаторы G75-VAC-WODA 75 gO³/h
Принадлежности для станций химии
Станции коагулирования (дозирования)
Электролизеры
Станции химии для бассейнов
Ручные и полуавтоматические дозаторы для бассейнов
Анализаторы воды и датчики
Химия для бассейнов
Альгицид для бассейна
Хлор для бассейна
pH минус для бассейна и pH плюс
Коагулянт для бассейна
Активный кислород для бассейна
Средства для чистки бассейна
Средства для консервации бассейна
Химия для СПА бассейна
Буферные и калибровочные растворы
Пылесосы и очистители для бассейна
Пылесосы и очистители для бассейна
Пылесосы для бассейна
Вакуумные очистители
Роботы-пылесосы
Ручные пылесосы
Расходные материалы для чистки бассейна
Щётки для бассейна
ваш город:
Псков
Пн-Пт: 9.00-18.00
сейчас: 09:17 МСК
Выберите ваш город:
А
Абакан
Абхазия
Адыгея
Алушта
Анадырь
Анапа
Армавир
Архангельск
Б
Барнаул
Белгород
Бердянск
Благовещенск
Брянск
В
Великий Новгород
Владивосток
Владикавказ
Владимир
Волгоград
Вологда
Воронеж
Г
Геленджик
Горно-Алтайск
Грозный
Е
Евпатория
Ейск
Екатеринбург
И
Иваново
Ижевск
Иркутск
Й
Йошкар-Ола
К
Казань
Калининград
Калуга
Кемерово
Керчь
Кизел
Киров
Кисловодск
Кострома
Краснодар
Красноярск
Курган
Курск
Л
Липецк
М
Магадан
Майкоп
Махачкала
Москва
Мурманск
Н
Нижний Новгород
Новокузнецк
Новороссийск
Новосибирск
О
Омск
Орел
Оренбург
П
Пенза
Пермь
Петрозаводск
Петропавловск-Камчатский
Псков
Р
Ростов-на-Дону
Рязань
С
Салехард
Самара
Санкт-Петербург
Саранск
Саратов
Севастополь
Симферополь (Республика Крым)
Смоленск
Сочи
Ставрополь
Судак
Сыктывкар
Т
Таганрог
Тамань и Темрюк
Тамбов
Тверь
Томск
Тула
Тюмень
У
Улан-Удэ
Ульяновск
Уфа
Ф
Феодосия
Х
Хабаровск
Ханты-Мансийск
Ц
Цхинвал
Ч
Чебоксары
Челябинск
Череповец
Черкесск
Чита
Э
Элиста
Ю
Южно-Сахалинск
Я
Якутск
Ялта
Ярославль
Корзина
Сравнение
Избранное
/
Объекты
/
Отель Суздаль
Сервис
Обслуживание спортивных объектов
Обслуживание СПА объектов
Обслуживание аквапарка
Обслуживание бассейна
Как купить
Доставка
Оплата
Самовывоз
Гарантия
Объекты
Дом Престарелых в городе Титмонинг, Германия
Центр Vault Герцогенаурах, Германия
Флейта Мирабелл Зальцбург, Австрия
Арт-кластер "Таврида" Судак, Республика Крым
Спа проект "Висячие сады Семирамиды" респ. Крым
Контакты
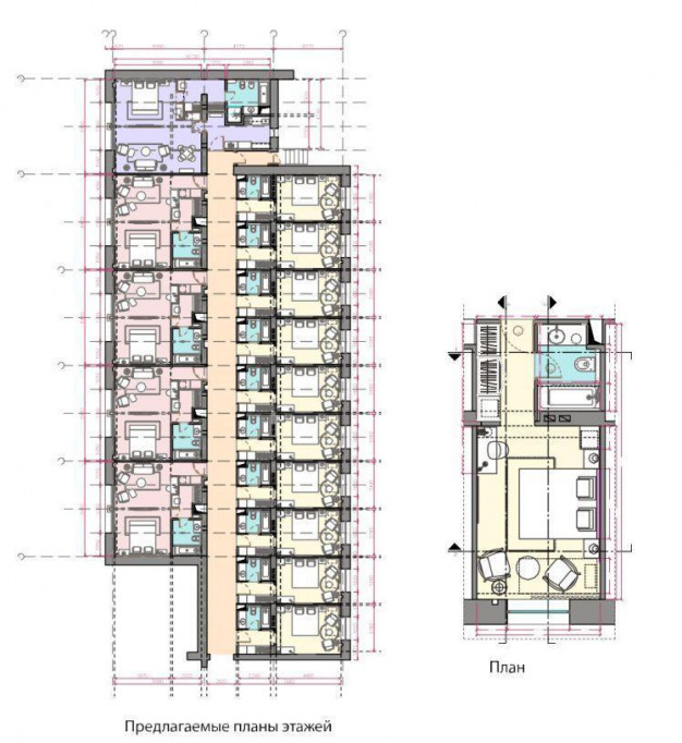
Отель Суздаль
Суздаль, Россия 2020
Суздаль, Россия
Архитекторы: studioGA Architekten
Заказчик: Частное лицо
64